Niet creatief? Echt wel! Kom waterverven met mijn superleuke online cursus.

Er komt een nieuwe keuken!

Yes, de definitieve tekeningen voor onze nieuwe keuken zijn er! In mei deelde ik al dat we een nieuwe keuken hadden uitgezocht en eind september is het zover, dan wordt ‘ie geplaatst. Ik wil je vandaag graag de tekeningen laten zien.


Leestijd

Voor...

Dit is hoe onze keuken er nu uitziet. Deze keuken zat al in dit huis toen we hier kwamen wonen en het was vanaf het begin niet onze droomkeuken, maar hij voldeed prima en het was ook niet echt een doorn in ons oog. Wel vonden we de indeling wat minder: de hoge kast met koelkast en oven voor het raam, daar zouden we zelf niet voor kiezen. En inmiddels valt ‘ie gewoon letterlijk uit elkaar en is bijna alles kapot, haha. De vaatwassen kantelt voorover en doet het niet meer goed, de koelkast sluit slecht, de afzuigkap is stuk, het fornuis werkt niet goed en deurtjes vallen eruit.

In mei gingen we eindelijk kijken bij een keukenzaak (Satink hier in Zwolle) en toen hakten we ook meteen de knoop door. We wisten al wat we mooi vonden en wat we wilden qua kleuren en mogelijkheden. Dus na een paar uurtjes hadden we een grove tekening, alles uitgezocht, check, let’s do it!

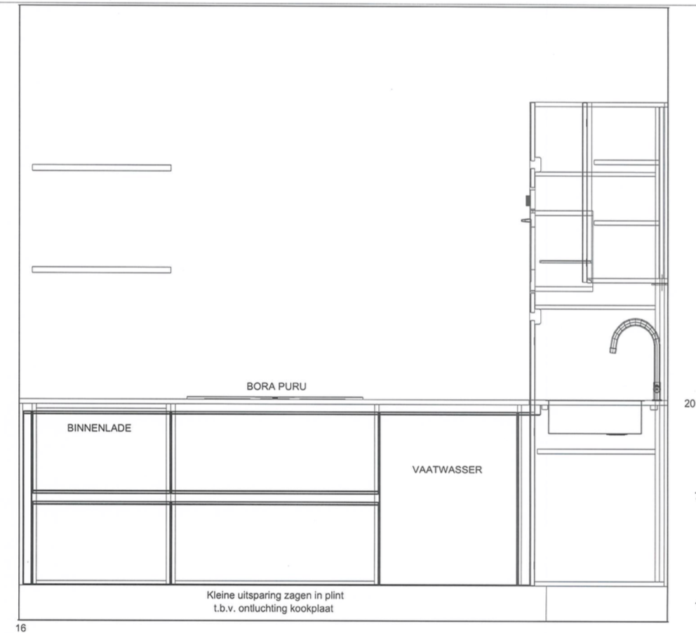
...en na: De tekeningen en indeling

Dit gaat het worden! De indeling is wat anders geworden zoals je ziet, de koelkast en oven zijn verplaatst naar een plek waar ze in ieder geval niet voor het raam staan. Het materiaal van de kastjes is mat zwart en we hebben een natuurstenen lichtgrijs werkblad. Op de muur komen tegels, maar die moeten we nog uitzoeken (en die komen er toch pas in als de keuken er eenmaal in zit). Geel komt trouwens niet terug! Ik zit te denken aan gebroken wit geglazuurde visgraat tegels, maar we hebben nog niet officieel gekozen.

We hebben op deze manier iets meer kastruimte omdat we ook boven twee kastjes krijgen, wat we nu niet hebben. Met deze ruimte kunnen we niet megaveel, het is nu eenmaal wat aan de kleine kant, maar wij denken dat dit de meest ideale indeling is. Een eiland of zo is geen mogelijkheid, daarvoor is het hier allemaal net niet ruim genoeg.

Wat dus top is, is dat we geen afzuigkap meer hebben straks omdat de afzuiging in onze nieuwe kookplaat zit (een Bora Puru). Dat lijkt me dus zó relaxed. En: we zijn gegaan voor een Quooker Cube, een variant waar zowel kokend water als gekoeld en bruisend water uitkomt. Super deluxe en echt iets waar ik niet over hoefde te twijfelen: Willem en ik drinken de hele dag door Spa Rood dus dit is helemaal top voor ons.

Eind september wordt de keuken geplaatst en we kunnen niet wachten! Ik heb er zóveel zin in. Zodra hij geplaatst is laat ik je het resultaat uiteraard zien. Wij zij in ieder geval nu al helemaal blij met onze nieuwe keuken. Hemels lijkt me het om te koken en te leven in een keuken waarin níet alles uit elkaar dondert als je het aanraakt, hahaha…

Oh ja, voor de volledigheid: alles aan deze keuken heb ik zelf betaald. 🙂


Cynthia Schultz

Ik ben Cynthia Schultz en Cynthia.nl is mijn blog! Ik ben gek op eten, reizen, beauty, interieur, lezen, gadgets en daar blog ik over. Lees hier meer over mij.